• VLEGI 501  A7

    38 ㎡ flagship home version

Product Parameters

  • A7-02.jpg
  • A7-07.jpg
icon (12).png

Length*width*height

11.5*3.3*3.2M

icon (11).png

Building area

38㎡

icon (9).png

Number of occupants

2-4

icon (5).png

Rated power

12KW

icon (2).png

Total net weight

8.5T

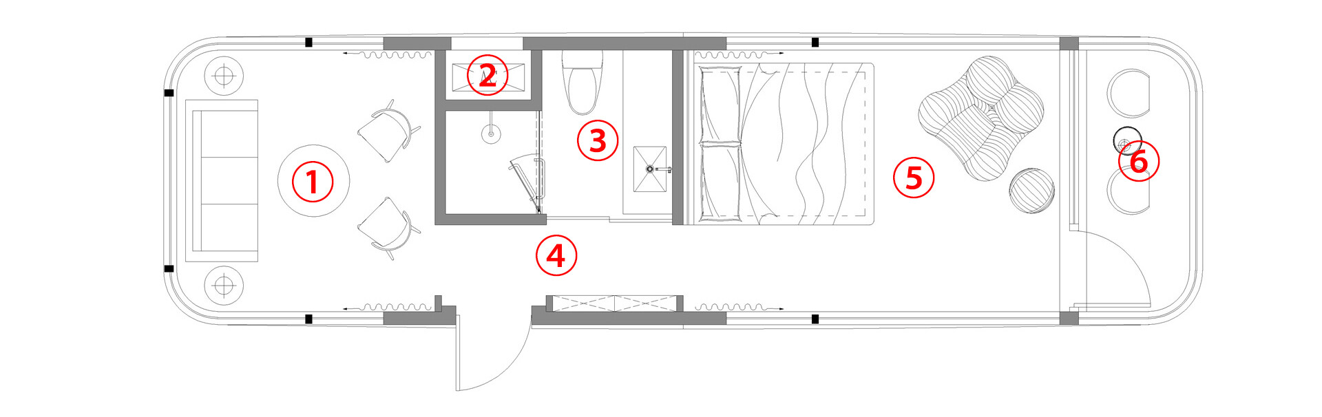
Function Introduction

A7-1.jpg

1-Living Room/Kitchen,  2-Equipment Room,  3-Bathroom,  4-Corridor,  5-Bedroom,  6-Outdoor Balcony

Message
Submit